First Floor Layout
Open Coastal Living
The first floor of the cottage is designed with an airy open-concept plan that blends living, dining, and kitchen into one seamless space. Large windows bring in natural light, highlighting the premium finishes and new construction details. This level also includes a full kitchen with modern appliances, generous storage, and a comfortable dining area—perfect for everyday living or entertaining.
Square Footage: 437 sq. ft.

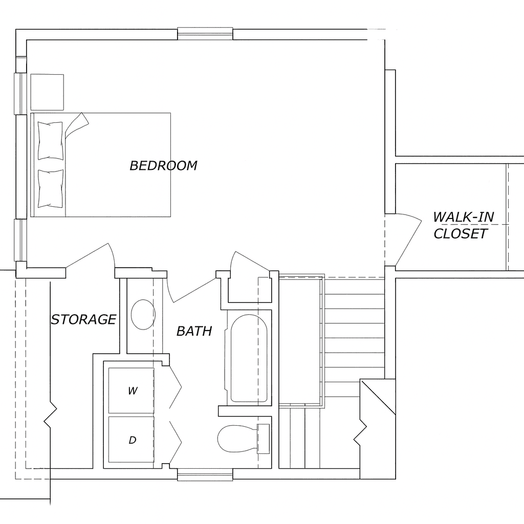
Second Floor Layout
Private Retreat
Upstairs, the cottage transitions into a private retreat. The second floor features a thoughtfully oversized bedroom, full bath, and walk-in closet, designed for both comfort and convenience. A laundry area with washer and dryer makes daily living simple and efficient, while a bonus storage closet provides additional space to keep belongings organized and out of sight.
Square Footage: 366 sq. ft.

